Programme à Bourg-Saint-Christophe

Implantée au cœur de Bourg-Saint-Christophe, l’opération menée par RK Groupe au Chemin du Pommier illustre la capacité du promoteur à identifier, acquérir et valoriser un foncier stratégique. Sur cette parcelle généreuse et arborée, le groupe a engagé une division en six lots, dont quatre terrains à bâtir destinés à accueillir des constructions neuves et deux lots comprenant des bâtis existants à rénover. Cette organisation parcellaire témoigne d’une volonté d’optimiser le potentiel du site tout en préservant son identité paysagère.

Le travail de RK Groupe se concentre ici sur la maîtrise du foncier, la structuration des parcelles et l’intégration cohérente du projet dans son environnement. Le plan de division met en lumière une répartition claire des lots, une circulation douce et la préservation d’espaces naturels, assurant un équilibre d’ensemble et une continuité avec le tissu résidentiel. L’insertion paysagère confirme cette approche mesurée, respectueuse des vues et de la morphologie du quartier.

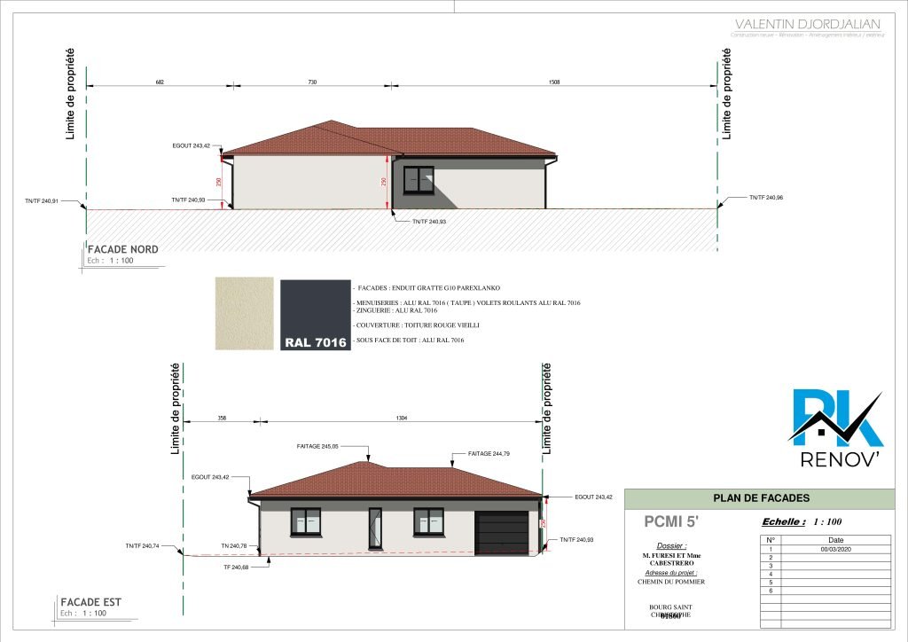
Les futures constructions et réhabilitations, qui relèveront de la compétence RK Rénov, s’inscriront dans la continuité de cette vision globale : architectures sobres, volumétrie maîtrisée, matériaux en harmonie avec le cadre existant et un soin particulier porté à la qualité d’usage. Les premières projections montrent comment les interventions neuves et les rénovations pourront se fondre dans l’environnement tout en apportant une réponse contemporaine aux besoins actuels.

À travers cette opération, RK Groupe réaffirme son savoir-faire : lire un territoire, structurer un foncier, anticiper les usages et poser les fondations d’un projet cohérent. Ce travail préparatoire essentiel permet ensuite à RK Rénov de déployer tout son savoir-faire technique pour créer des habitations durables, performantes et parfaitement intégrées. Ensemble, les deux entités démontrent une vision commune : transformer un potentiel foncier en un ensemble résidentiel harmonieux, pérenne et pleinement ancré dans son environnement.

Catégories

Programmes en cours
Tous les programmes

Contact rapide